Projekte
Projektentwicklung
Aufgrund unserer langjährigen Berufstätigkeit in den zurückliegenden drei Jahrzehnten konnten wir bei den vielfältigen Aufgabenstellungen unsere Bauherren nicht nur in der Realisierung ihrer Bauvorhaben unterstützen.
Vielfach bereits in der Anfangsphase einer Grundstückssuche wurden wir eingebunden und haben mit den genehmigenden Behörden und Grundstücksbesitzern belastbare bauliche und auch städtebauliche Konzepte ausgearbeitet, die dann zu einer Grundstücksentwicklung führten.
Unsere Erfahrung im Umgang mit den zuständigen genehmigenden Behörden hat uns jederzeit auch bei komplexen Aufgabenstellungen geholfen städtebauliche Zusammenhänge zu erkennen, Konzepte zu entwickeln und die Bauherrschaft und/oder den Grundstückseigentümer zu unterstützen, so dass dadurch eine realistische Bewertung der Liegenschaft erfolgen kann.
Gestalterisch anspruchsvolle Gebäude zu entwickeln – aber auch die Wertschöpfung aus der Grundstücksentwicklung zu ermöglichen – darin liegt für uns der Reiz nachhaltiger Projektentwicklungen.
Wohnbebauung Humboldtring, Potsdam
Potsdam, Humboldtring
BGF ca. 12.000m²
Grundstück ca. 4.200m²
Planungsbeginn: 2020
Auf einem freien und gut erschlossenen Baugrundstück nahe der Havel entsteht ein Neubauvorhaben mit 141 Mietwohnungen, zum Großteil als geförderter Wohnungsbau. Im ersten Obergeschoss werden zudem barrierefreie Wohnungen realisiert.
Eine attraktive Lage unweit der Innenstadt und des Hauptbahnhofs sowie des Havelufers und Park Babelsberg wird durch die vor der Haustür befindliche Straßenbahnhaltestelle abgerundet.
Der längliche Baukörper wird optisch durch farbliche Akzente gegliedert, dies hebt die einzelnen Hauseingänge hervor und schafft einen harmonischen Rhythmus.
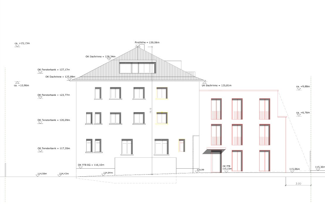
Eckenheimer Landstraße 33, Frankfurt am Main
Auf dem ehemals durch eine Schreinerei genutzten Areal entstehen neue Wohnungen sowie drei Reihenhäuser auf einer Tiefgarage mit 11 Stellplätzen.
Die Gebäudekonzeption greift die Typologie einer Hofreite auf – eine Bauform die im Stadtteil häufig ausgeführt wurde.
Vertikal angeordnete Fensterelemente gliedern die Fassaden. Zwei Mehrfamilienhäuser rechts und links bilden den Hof und seitlich an der Kopfseite sind drei Reihenhäuser geplant, die mit einem „lebendigen Wohnhof“ zusammengefügt werden.














