Details
Wohnbebauung Humboldtring, Potsdam
Wohnbebauung mit 141 Wohnungen
Potsdam, HumboldtringBGF ca. 12.000m²
Grundstück ca. 4.200m²
Planungsbeginn: 2020
Eine attraktive Lage unweit der Innenstadt, des Hauptbahnhofs sowie des Havelufers und Park Babelsberg. Die öffentliche Verkehrserschließung erfolgt über die Sraßenbahnhaltestelle direkt vor der Tür.
Der längliche Baukörper wird optisch durch farbliche Akzente gegliedert, dies hebt die einzelnen Hauseingänge hervor und schafft einen harmonischen Rhythmus.
Insgesamt wird die Bebauung durch aneinandergereihte, in der Fassade ablesbare einzelne Mehrfamilienhäuser entsprechend der in Potsdam vorwiegend vorzufindenden Maßstablichkeit gegliedert.
Atzelbergerstraße
Planungsbeginn: 2018
Fertigstellung: 2021
Auf dem Grundstück Atzelbergstraße 110 ist geplant, die eingeschossigen Lager- und Werkstattbaukörper abzureißen und an selbiger Stelle entlang der Atzelberg- Wilhelmshöherstraße einen mehrgeschossiges Wohngebäude mit Ladenflächen im Erdgeschoss zu errichten. Die Gestaltung des Gebäudes nimmt Anklang an die bestehende kleinteilige Bebauung im Frankfurter Stadtteil Seckbach mit Mansarddach in
Schieferdeckung sowie Fassaden mit vertikalen Fensteröffnungen.
Rathaus Plaza Offenbach a. M.
Grundstücksfläche ca. 3.000 m²
Mietfläche ca. 10.000 m²
Einkaufsflächen ab 100 m²
Planungsbeginn: 2016
Fertigstellung: 2020
“Die Frankfurter Straße in Offenbach entwickelt sich als Haupteinkaufsstraße zunehmend positiv und gewinnt deutlich an Attraktivität und Qualität. Im Zentrum entsteht in bester Lage das “Rathaus Plaza”. Der Bürobereich im 2. und 3. OG mit dem Mieter Regus wird die Anziehungskraft Offenbachs weiter erhöhen. Durch dieses Neubauprojekt wird das Niveau des Shoppingangebots und die Aufenthaltsqualität der Innenstadt weiter ansteigen.” Die Gestaltung der rund 60m langen Fassade greift optisch die Historie Offenbachs als Industriestadt auf und überführt die industrielle Ästhetik in zeitgemäße, urbane und identitätsbildende Architektur. Mitten in der Fußgängerzone entsteht ein einzigartiges Bauwerk, das dem Besucher neben der ansprechenden Erscheinung eine große Angebotsvielfalt auf hohem Niveau bietet.
Es wurde eine direkte Anbindung im Untergeschoss an das bestehende Rathaus Parkhaus geschaffen. Ein zusätzlicher Aufzug auf der Nordseite des Gebäudes ermöglicht nun den barrierefreien Zugang zu der öffentlichen Parkgarage.
Wohnen im Diakonissenareal
Frankfurt am Main Holzhausenviertel ehem. Diakonissen-Krankenhaus
4 Mehrfamilienwohnhäuser und eine Kita U3 zweizügig
Grundstück: 5.947 m²
BGF gesamt oberirdisch: 10.615 m²
BGF gesamt unterirdisch: 3.650 m²
Planungsbeginn: 2015
Fertigstellung: 2018/2019
Links:
Holzhausenstraße 72-84
Städtebaulich bilden die einzelnen Bausteine ein Gesamtgefüge, das sich entlang der Holzhausenstraße erstreckt, den Innenbereich schützt und durch Höhenzäsuren die Straßenansicht gliedert. Um ein einheitliches Bild entlang der Holzhausenstraße zu erreichen, passen sich die Neubauten in Höhe und Gestaltung an die umgebende Bebauung an.
Fotografie: Thomas Eicken
Wohnen im Diakonissenareal
Frankfurt am Main Holzhausenviertel ehem. Diakonissen-Krankenhaus
4 Mehrfamilienwohnhäuser und eine Kita U3 zweizügig
Grundstück: 5.947 m²
BGF gesamt oberirdisch: 10.615 m²
BGF gesamt unterirdisch: 3.650 m²
BGF oberirdisch: 3.455 m²
BGF unterirdisch: 1.750 m²
Links:
Holzhausenstraße 72-74
Das Gebäude Holzhausenstraße 72-74 wird als 5-geschossiges Wohngebäude inklusive einer unterirdischen Tiefgarage und zum Wohngebäude zugehörige Kellerbereiche errichtet. Die Nutzung Wohnen, umfasst 17 Wohneinheiten. Die Erschließung erfolgt über zwei separate Hauseingänge und Treppenhäusern.
Die Fassade des Hauses in der Holzhausenstraße 72-74 wurde mit Crailsheimer Muschelkalk geplant und von der Natursteinfirma Schön + Hippelein realisiert. Die Entwurfsidee der Fassade nimmt das Wechselspiel zwischen Natursteingesimsen und Putzflächen der historischen Gebäude in der Nachbarschaft auf.
Der Crailsheimer Muschelkalk der Natursteinwerke ähnelt der eleganten historischen Bausubstanz in diesem besonderen Viertel von Frankfurt, die uns als Architekten als Vorbild dienten.
Der Crailsheimer Muschelkalk der Natursteinwerke ähnelt der eleganten historischen Bausubstanz in diesem besonderen Viertel von Frankfurt, die uns als Architekten als Vorbild dienten.
Fotografie: Thomas Eicken
Wohnen im Diakonissenareal
Frankfurt am Main Holzhausenviertel ehem. Diakonissen-Krankenhaus
4 Mehrfamilienwohnhäuser und eine Kita U3 zweizügig
Grundstück: 5.947 m²
BGF gesamt oberirdisch: 10.615 m²
BGF gesamt unterirdisch: 3.650 m²
BGF oberirdisch: 2.100 m²
Links:
Holzhausenstraße 76
An der Holzhausenstraße 76 umfasst 10 Wohneinheiten. Das Wohngebäude ist in massiver Bauart geplant, dessen Dachform als Flachdach mit hochgezogener Attika ausgeführt wurde. Ein Penthaus mit Skydeck und Swimmingpool in hochwertiger Ausstattung wurde im obersten Geschoss realisiert. Die Natursteinfassade wurde in dem spanischen Kalkstein "Ocean Rosal" ausgeführt
Fotografie: Thomas Eicken und David Straßburger
Wohnen im Diakonissenareal
Frankfurt am Main Holzhausenviertel ehem. Diakonissen-Krankenhaus
4 Mehrfamilienwohnhäuser und eine Kita U3 zweizügig
Grundstück: 5.947 m²
BGF gesamt oberirdisch: 10.615 m²
BGF gesamt unterirdisch: 3.650 m²
Links:
Holzhausenstraße 78-82
Das Gebäude Holzhausenstraße 78-82 wird als 5-geschossiges Wohngebäude inklusiver einer unterirdischen Tiefgarage errichtet. Weiterhin wird die ursprüngliche historische Bestandsfassade des ehemaligen Diakonissen-Krankenhauses vom Untergeschoss bis ins 2.Obergeschoss erhalten und in den Neubau integriert. Das nach dem Krieg realisierte Dachgeschoss wurde abgerissen. Zusätzlich wurden zwei Geschosse aufgebaut. Ein hohes Steildach aus Schiefer unterstreicht die Bedeutung dieses Baukörpers innerhalb des gesamten Ensembles.
Die Nutzung Wohnen umfasst 30 Wohneinheiten, wovon 21 Wohnungen im Rahmen des Frankfurter Programms für familien-und seniorengerechten Mietwohnungsbau realisiert werden. Fassade: Sandstein und integrierte rötliche Sandsteinelemente.
Fotografie: Thomas Eicken
Wohnen im Diakonissenareal
Frankfurt am Main Holzhausenviertel ehem. Diakonissen-Krankenhaus
4 Mehrfamilienwohnhäuser und eine Kita U3 zweizügig
Grundstück: 5.947 m²
BGF gesamt oberirdisch: 10.615 m²
BGF gesamt unterirdisch: 3.650 m²
BGF oberirdisch: 1.400 m²
BGF unterirdisch: 1.900 m²
Links:
Holzhausenstraße 84
Das Gebäude Holzhausenstraße 84 wird als 5-geschossiges Wohngebäude mit 9 Wohneinheiten inklusive einer unterirdischen Tiefgarage und zum Wohngebäude zugehörige Kellerbereiche errichtet. In westlicher Richtung wurde an das Gebäude Holzhausenstraße 78-82 mit der bestehenden historischen Fassade angebaut.
Die Fassadengestaltung orientiert sich an den vorhandenen Bauten des
Holzhausenviertels und greift die zur Jahrhundertwende üblichen
klassizistischen Details wie Gesimse, Friesen und besondere Eingangsportale auf. Der gewählte Naturstein steht in seinem grünen Farbton im Kontrast zur Bestandsfassade (Haus 78-82) aus rotem Sandstein.
Fotografie: David Straßburger
Wohnbebauung Bertramstraße 2
Frankfurt am Main
5 Mehrfamilienwohnhäuser mit Kita U3 und Ü3 sechszügig im Passivhausstandard
BGF gesamt oberirdisch: 22.424 m²
BGF gesamt unterirdisch: 7.244 m²
Anzahl der Wohneinheiten: 189
2-5 Zi Wohneinheiten: 53 m² - 130 m²
Planungsbeginn: 2013
Fertigstellung: 2018
LPH 5
Das Wohnungsbauprojekt “Wohnbebauung Bertramstraße 2 ” wurde von den Architektur- büros AS&P - Albert Speer & Partner GmbH und Karl Dudler Architekten bis Abschluss der Genehmigungsplanung geplant.
Die Ausführungsplanung von sämtlichen Häusern wurde von VRL bearbeitet. Vier der Gebäude bilden mit dem im Süden angrenzenden Bestand einen Blockrand, das fünfte Gebäude liegt als Solitär im Innenhof. Die verputzte Lochfassade wird durch Gesimse und Streifen mit Kammzugputz horizontal gegliedert. In den Erdgeschossbereichen ist die Fassade teilweise verklinkert. Die Staffelgeschosse sind alle deutlich zurückgesetzt und bieten so großzügig gestaltete Dachterrassen. Der halböffentlich angelegte Innenhof bietet Sitzmöglichkeiten, einen Spielbereich sowie den Freibereich der Kita.
Fotografie: Thomas Eicken
Sanierung Kirche
Frankfurter Diakonissenhaus
Planungsbeginn: 2016
Fertigstellung: 2018
"Äußerlich scheint alles wieder so zu sein wie es einst war, aber eigentlich ist die Kirche wie neu. Sie erstrahlt in hellen Farben und in moderner LED-Beleuchtung und neuer Fußbodenheizung, die Übertragungs- und Lautsprechertechnik ist auf neuestem Stand, die nicht mobilen Bewohnerinnen und Bewohner von dem Pflegeheim Nellinistift und Mutterhaus können jetzt in HD-Qualität an den Gottesdiensten teilnehmen." Die Sanierung umfasst die Erneuerung der technischen Anlagen, Einbau einer Fußbodenheizung, neue LED Beleuchtung, neue Tontechnik, ein Behinderten WC, Sanierung der Fassade und die neue Dacheindeckung in Schiefer.
Fotografie: Thomas Eicken
Wohn- und Geschäftshaus Hessestraße 1-3
Planungsbeginn: 2015
Fertigstellung: 2019
Grundstücksgröße: 11.152.00 m²
Tiefgarage: 1030.89 m²
Gebäudesanierung: Das Bestandsgebäude wurde im Jahre 1958 errichtet. Durch die Maßnahme wird eine Gesamtaufwertung der Liegenschaft erzielt. An das fünfgeschossige Wohnhaus in der Hessestraße 1 – 3 sollen zusätzlich Balkone angebaut werden. Im Gebäude befindet sich im Erdgeschoss ein REWE-Supermarkt, in den weiteren Geschossen befinden sich 1-3 Zimmer Wohnungen.
B&B Hotel
Mombacher Straße, Mainz
Nettogrundfläche: 2.894,75 m²
Bruttogeschossfläche: 3.596,76 m²
Bruttorauminhalt: 11.117,08 m²
Anzahl der Zimmer: 119
Planungsbeginn: 2015
Fertigstellung: 2017
Auf dem ca 4,6 ha großen Areal ist ein Mix aus Bürogebäuden, Wohnungen für Studierende sowie am Beginn des Grundstücks zwei Hotelbaukörpern vorgesehen. Das Areal liegt in unmittelbarer Nähe zum Mainzer Hauptbahnhof und der Mainzer Neustadt. Die Hotelbaukörper bilden den städtebaulichen Auftrakt der Gesamtentwicklung. Beide Baukörper orientieren sich in der Fassadengestaltung an dem vorhandenen historischen Backsteingebäude und bilden somit ein städtebauliches Ensemble. Aufgrund der gewählten Gebäudedisposition entstehen spannende Blickbeziehungen entlang der neuen Planstraße bis zum Bahnhofsgebäude.
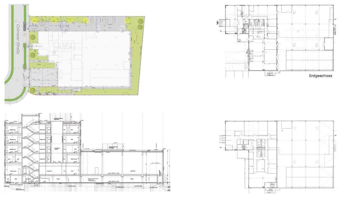
Grifols
Niederrad
Grundstück:4.193 m²
BGF DIN 277: 7.839 m²
BGF oberirdisch: 5.727 m²
BGF unterirdisch inkl. Garage: 2.112 m²
Planungsbeginn: 2015
Fertigstellung: 2017
Ausführungsplanung von VRL
Das Grundstück liegt in Frankfurt am Main, Schwanheim in unmittelbarer Nähe zur Bürostadt Niederrad, hat eine Größe von 4.193 m² und wird von der Colmarer Straße erschlossen. Es entsteht ein Neubau eines Bürogebäudes mit rückseitig angeschlossener Lagerhalle und einer offenen Großgarage. Das Bürogebäude verfügt über ein Untergeschoss, ein gegenüber dem Straßenniveau um ca. 1,10 m erhöhtes EG und 4. weitere Obergeschosse. Die Lagerhalle ist eingeschossig auf der Ebene des Erdgeschosses und die Garage befindet sich im UG unterhalb des Lagers sowie unter Teilen des Bürogebäudes. Im UG sind außerdem ein Archiv für die Büroflächen, ein Müllraum sowie technische Betriebsräume untergebracht.
Wohngebäude Passivhaus, Ferdinand-Happ-Straße
Frankfurt am Main
Bruttogeschossfläche ca. 13.000 m²
Anzahl der Wohneinheiten 90
Hauptbaukörper Wohneinheiten 74
Solitärgebäude Wohneinheiten 16
Tiefgaragenstellplätze 57
1-5 Zimmer-Wohneinheiten 20-200 m²
Das Projekt EASTGATE Living liegt in einem der lebendigsten und abwechslungsreichsten Viertel Frankfurts. Der Baukörper entlang der Ferdinand-Happ-Straße ist gekennzeichnet durch eine differenziert gestaltete Fassade in unterschiedlichen Materialien mit Vor- und Rücksprüngen, die die einzelnen Häuser erkennen lassen. Bodentiefe Fenster geben der Fassade eine vertikale Ordnungsthematik. Die gewählte Gebäudetypologie nimmt in ihrer Breite die Abmessungen der in der Nachbarschaft vorhandenen bestehenden Mietshäuser auf. Im Inneren des Grundstückes entsteht ein Solitär. Die Fassade wird ebenfalls mit vertikalen Fensteröffnungen ausgebildet. Der Sockel wird in Bossenputzweise vorgesehen. Es entsteht ein eleganter Baukörper in einem ruhigen Freiraum.
Wohnungsbau Cronstettenstraße
Frankfurt, am Main
Planungsbeginn: 2014
Fertigstellung: 2016
Der Bauherr hat sich entschlossen das bestehende Bürogebäude in ein Wohngebäude mit Eigentumswohnungen umzuwandeln. In einer der besten Wohnlagen in Frankfurt entsteht ein hochwertiges Wohnungsbauvorhaben mit 12-14 Wohneinheiten mit unterschiedlichen Wohngrößen.
Mitsubishi MMD Automobile
Flörsheim
2016
Der Automobil- und Weltkonzern Mitsubishi MMD erwägt einen Zusammenschluss verschiedener Unternehmensbereiche am Standort Flörsheim. Im Zentrum der Überlegungen steht ein für den Pkw-Bereich vorgesehener Showroom mit Außenwirkung.
Frankfurter Diakonissenareal *
*Referenzen von Architekt Carsten Volleth in der Zeit von 1998 - 2014 bei B&V Braun Canton Volleth Architekten GmbH
2. Bauabschnitt Wohngebäude, Kindertagesstätte, Service-Wohnen
Passivhaus
BGF Gesamt: ca. 16.408 m²
BRI Gesamt: ca. 59.225 m³
Planungsbeginn: 2006
Baubeginn: 2009
Fertigstellung: 2017
Hocheffiziente Gebäudetechnik
Gasbrennwerttechnik 38 Erdsonden
Heizwärmebedarf: 14kWh/(m²a)
Kühlung: 0,7 kWh/(m²a)
Primärenergie-Kennwert: 17 kWh/(m²a)
BAUTEIL B 30 Mietwohnungen
BAUTEIL C 51 Service-Wohnungen
51 Barrierefreie Wohnungen (DIN 18025/2)
Nachdem durch den Beschluss zur umfangreichen Umstrukturierung des Frankfurter Diakonissenhauses das neue Plegeheim gebaut wurde und das "neue Mutterhaus" in dem unter Denkmalschtz stehenden historischen Gebäude in der Cronstettenstraße durch die Schwesternschaft bezogen wurde, errichtete die ABG (Frankfurter Aufbau AG) entlang der Escherheimer Landstraße zwei große Mehrfamilienhäuser.
Fotografin: Lisa Farkas
Loftwerk Eschborn*
*Referenzen von Architekt Carsten Volleth in der Zeit von 1998 - 2014 bei B&V Braun Canton Volleth Architekten GmbH für Leistungsphase 1 - 4, Leistungsphase 5 wurde von WRL Architekten übernommen
Neubau-Ensemble von zwei Büro- und Geschäftshäusern
Zertifizierung: Silber DGNB
Grundstück: ca. 7.145 m²
Bruttogeschossfläche: ca. 14.000 m²
Bruttorauminhalt: ca. 84.000 m²
Mietfläche: ca. 21.500 m²
Stellplätze unterirdisch: 238 Stück Stellplätze obererirdisch: 33 Stück
Planungsbeginn: 2009
Baubeginn: 2011
Fertigstellung: 2013
Die städtebauliche Konzeptidee unterscheidet sich von den bereits realisierten Bürogebäuden auf dem Helfmann-Park Areal in Eschborn dadurch, dass die auf der Grundstücksparzelle zulässige Baumasse auf zwei Baukörper aufgeteilt wurde.
Dadurch entsteht eine Straßenraumerweiterung in der Achse der Verlängerung der Ginnheimer Straße. Die gewählte Gebäudeform ermöglicht eine großzügige Aufenthaltsqualität auf dem halböffentlichen Platz. Der Platz wird in den Pausen genutzt und dient der fußläufigen Erschließung der von der Straße abgewandten Bürobereiche.
Der erste Bauabschnitt umfasst 8000 m² auf 6 Geschossen verteilt, der zweite Bauabschnitt hat eine Größe von 6000 m² auf 7 Geschossen. Eine Tiefgarage mit 137 Stellplätzen auf 2 Ebenen verbindet die beiden Bauteile im Untergeschoss. Im 3. Obergeschoss wurde eine Brücke entworfen, die auch die Bürobereiche untereinander verbindet.
Dadurch entsteht eine Straßenraumerweiterung in der Achse der Verlängerung der Ginnheimer Straße. Die gewählte Gebäudeform ermöglicht eine großzügige Aufenthaltsqualität auf dem halböffentlichen Platz. Der Platz wird in den Pausen genutzt und dient der fußläufigen Erschließung der von der Straße abgewandten Bürobereiche.
Der erste Bauabschnitt umfasst 8000 m² auf 6 Geschossen verteilt, der zweite Bauabschnitt hat eine Größe von 6000 m² auf 7 Geschossen. Eine Tiefgarage mit 137 Stellplätzen auf 2 Ebenen verbindet die beiden Bauteile im Untergeschoss. Im 3. Obergeschoss wurde eine Brücke entworfen, die auch die Bürobereiche untereinander verbindet.
Goldbergweg 85, Frankfurt am Main*
*Referenzen von Architekt Carsten Volleth in der Zeit von 1998 - 2014 bei B&V Braun Canton Volleth Architekten GmbH
BGF Gesamt: ca. 10.500 m²
BRI: ca. 28.800 m³
Planungsbeginn: 2009
Baubeginn: 2011
Fertigstellung: 2012
In einer neuen umfassenden Umbausituation wurde das erste Obergeschoss ebenfalls für Pflegebedürftige umgebaut.
Der Charakter des Gebäudes wandelte sich durch die Umgestaltung der Fassaden - die zuvor horizontal angeordneten Fensteröffnungen werden durch vertikale Fenster ersetzt. Neben der gestalterischen „Umwandlung“ des Gebäudes wurde auch die technische Ausrüstung inkl. Wohnraumlüftung und einer Pelletanlage neu konzipiert.
Grundlage war die Handlungsempfehlung zum vorbeugenden Brandschutz für den Bau und Betrieb von Nutzungseinheiten mit Gruppenbetreuung in Altenheimen.
Bürogebäude Stiftung Waisenhaus*
*Referenzen von Architekt Carsten Volleth in der Zeit von 1998 - 2014 bei B&V Braun Canton Volleth Architekten GmbH
Neubau eines Betreuungszentrum für die Stiftung Waisenhaus
Erstes zertifiziertes Büro-Passivhaus in Frankfurt a.M. | Bleichstrasse 8 und 10
Grundstück: ca. 2.618 m²
BGF Oberirdisch: ca. 7.400 m²
BGF Unterirdisch: ca. 2.500 m²
Bruttorauminhalt: ca. 30.000 m³
Mietfläche: ca. 6.100 m²
Planungsbeginn: 2008
Baubeginn: 2009
Fertigstellung: 2011
Bausumme: 17 Mio €
Objektplanung: LPH 1-9
Hocheffiziente Gebäudetechnik
Pelletheizungsanlage
Absorptionskältemaschine
Heizwärmebedarf: 14 kWh/(m²a)
Kühlung: 14 kWh/(m²a)
Primärenergie-Kennwert: 106 kWh/(m²a)
Die Natursteinfassade besteht aus einem Crailsheimer Muschelkalk mit unterschiedlicher Oberflächenausführung. 2009 wurde das Gebäude vom Bundesministerium für Wirtschaft (BMWi) für energieoptimiertes Bauen mit einem Preis gewürdigt.
Während der Bauarbeiten fand man Teile alter Wallanlagen und Stadtbefestigungen, die mit der Denkmalschutzbehörde in das Planungskonzept integriert wurden, sodass die Anlagen zumindest in Teilen der Öffentlichkeit zugänglich sind.
Hertie Frankfurt Höchst*
*Referenzen von Architekt Carsten Volleth in der Zeit von 1998 - 2014 bei B&V Braun Canton Volleth Architekten GmbH
Geschäftsgebäude Frankfurt am Main
Grundstücksfläche: ca. 4.400 m²
BGF: ca. 9.138 m²
BRI: ca. 69.000 m³
Planungsbeginn: 2007
Baubeginn: 2008
Fertigstellung: 2010
Mieter: C&A, REWE, Postbank, Dm-Drogerie, Tedi, Kik, ELLEgance
Auf dem ehemaligen durch den Hertiekonzern genutzten Areal dem ehemaligen „Hertiekaufhaus“ entstand ein Neubau als Geschäftshaus mit Einzelhandelsnutzungen.
Das Grundstück liegt in der Fußgängerzone von Frankfurt Höchst in der Königsteinerstraße. Der zweigeschossige Baukörper mit den Nutzungen Drogerie, Post und Bekleidung im Erdgeschoss, sowie weiteren Bekleidungsnutzungseinheiten im Obergeschoss wird von den Bewohnern in Höchst gut angenommen. Großzügige Verglasungen werden gegliedert, sodass keine Glasfront in der Fußgängerzone entsteht, sondern die jeweiligen Nutzungseinheiten sich auch in der Fassade darstellen können. Die Natursteinfassade wurde mit einem Crailsheimer Muschelkalk verkleidet. Dieses Material wurde in Anlehnung an die bestehende Haussubstanz, welche ebenfalls mit Muschelkalknaturstein ausgeführt wurden, ausgewählt. In der Mitte der Fassade befindet sich eine großzügige Erschließungshalle für das erste Obergeschoss.
Das Grundstück liegt in der Fußgängerzone von Frankfurt Höchst in der Königsteinerstraße. Der zweigeschossige Baukörper mit den Nutzungen Drogerie, Post und Bekleidung im Erdgeschoss, sowie weiteren Bekleidungsnutzungseinheiten im Obergeschoss wird von den Bewohnern in Höchst gut angenommen. Großzügige Verglasungen werden gegliedert, sodass keine Glasfront in der Fußgängerzone entsteht, sondern die jeweiligen Nutzungseinheiten sich auch in der Fassade darstellen können. Die Natursteinfassade wurde mit einem Crailsheimer Muschelkalk verkleidet. Dieses Material wurde in Anlehnung an die bestehende Haussubstanz, welche ebenfalls mit Muschelkalknaturstein ausgeführt wurden, ausgewählt. In der Mitte der Fassade befindet sich eine großzügige Erschließungshalle für das erste Obergeschoss.
Frankfurter Diakonissenhaus*
*Referenzen von Architekt Carsten Volleth in der Zeit von 1998 - 2014 bei B&V Braun Canton Volleth Architekten GmbH
Altenpflegeheim, Wohngebäude für Diakonissenschwestern, Erweiterungsflächen, Verwaltung
Bruttogeschossfläche ca. 13.200 m²
Bruttorauminhalt ca. 47.700 m³
Planungsbeginn: 2006
Baubeginn: 2007
Fertigstellung: 2009
Altenpflegeheim: 9 Wohngemeinschaften 81 Bewohnerzimmer 99 Betten in Einzel und Doppelzimmern
Das Areal des Frankfurter Diakonissenhauses befindet sich im Frankfurter Stadtteil Nordend.
Der Diakonissenverein zu Frankfurt wurde 1870 gegründet. Die Diakonissengemeinschaft bezog 1874 an der Eschersheimer Landstraße ein Mutterhaus mit Krankenhaus und Kapelle. In der Folgezeit entstanden auf dem Gelände Altenheime, Kindergärten und Hort, sowie weitere Einrichtungen. Im Rahmen einer Umstrukturierung und aufgrund technischer Mängel der bestehenden Bausubstanz wurde durch weitreichende Überlegungen entschieden Teile des Grundstücks zu veräußern und aus dem Erlös der Grundstücksveräußerung das Pflegeheim und Mutterhaus zu sanieren.
Der Diakonissenverein zu Frankfurt wurde 1870 gegründet. Die Diakonissengemeinschaft bezog 1874 an der Eschersheimer Landstraße ein Mutterhaus mit Krankenhaus und Kapelle. In der Folgezeit entstanden auf dem Gelände Altenheime, Kindergärten und Hort, sowie weitere Einrichtungen. Im Rahmen einer Umstrukturierung und aufgrund technischer Mängel der bestehenden Bausubstanz wurde durch weitreichende Überlegungen entschieden Teile des Grundstücks zu veräußern und aus dem Erlös der Grundstücksveräußerung das Pflegeheim und Mutterhaus zu sanieren.
Kaiserstraße 75-77*
*Referenzen von Architekt Carsten Volleth in der Zeit von 1998 - 2014 bei B&V Braun Canton Volleth Architekten GmbH
Büro- und Geschäftshaus
Frankfurt am Main
Grundstück: ca. 1.390 m²
BGF Gesamt oberirdisch: ca. 7.500 m²
BRI Gesamt: ca. 31.200 m²
Mietfläche: ca. 5.790 m²
Planungsbeginn: 2006
Fertigstellung: 2007-2008
Die Kaiserstraße in Frankfurt führt vom Hauptbahnhof zur Hauptwache. In Sichtweite zum Hauptbahnhof stand viele Jahre lang eine Immobilie, die mit einer Plane verdeckt wurde ungenutzt als Bauruine. Der Bauherr entschied eine Büronutzung als Neubau hinter der unter Denkmalschutz stehenden Fassade zu errichten. In Abstimmung mit der Denkmalschutzbehörde wurde die Fassade mit neuem, dem Bestand ähnelnden Naturstein ergänzt sowie die Farbe der Fenster ausgewählt. Im Erdgeschoss entstanden Einzelhandelsflächen und in den Obergeschossen hochwertige Büro- und Konferenzbereiche.
Die für den Altbau typischen Geschosshöhen führen dazu, dass das Gebäude als Hochhaus bauordnungsrechtlich eingestuft wurde.
Kronzprinzbau*
*Referenzen von Architekt Carsten Volleth in der Zeit von 1998 - 2014 bei B&V Braun Canton Volleth Architekten GmbH
Büro- und Geschäftshaus Stuttgart
Realisierungswettbewerb 1. Preis
Deutscher Natursteinpreis 2009, Lobende Erwähnung
BDA Auszeichnungen guter Bauten 2008
Hugo-Häring-Preis 2008
Grundstück: ca. 4.327 m²
GBF Gesamt: ca.44.897 m²
BRI Gesamt: ca.147.408 m²
Mietfläche: ca. 27.177 m²
Planungsbeginn: 2003
Fertigstellung: 2007
Das Konzept zum Kronprinzbau, unmittelbar in der Fußgängerzone in bester Geschäftslage in Stuttgart gelegen, resultiert aus einem gewonnenen Architekten Wettbewerb.
Der das Gebäude prägende Naturstein, ein Crailsheimer Muschelkalk, entspricht dem Naturstein des Hauptbahnhofs in Stuttgart. Eine gleichmäßige Gliederung der Fassade mit wiederkehrenden Fensteröffnungen erwirkt einen prägnanten Stadtbaustein am kleinen Schlossplatz. Im Erdgeschoss befinden sich hochwertige Einzelhandelsnutzungen, die Obergeschosse dienen Büro- und Konferenzbereichen.
Der das Gebäude prägende Naturstein, ein Crailsheimer Muschelkalk, entspricht dem Naturstein des Hauptbahnhofs in Stuttgart. Eine gleichmäßige Gliederung der Fassade mit wiederkehrenden Fensteröffnungen erwirkt einen prägnanten Stadtbaustein am kleinen Schlossplatz. Im Erdgeschoss befinden sich hochwertige Einzelhandelsnutzungen, die Obergeschosse dienen Büro- und Konferenzbereichen.
Hyundai Motor Europe*
*Referenzen von Architekt Carsten Volleth in der Zeit von 1998 - 2014 bei B&V Braun Canton Volleth Architekten GmbH
Offenbach am Main
Büro - und Ausstellungsgebäude
Bruttogeschossfläche (oberirdisch) ca. 20.850 m²
Bruttorauminhalt ca. 93.420 m³
Planungsbeginn: 2004
Baubeginn: 2005
Fertigstellung: 2006
Büronutzung sowie eine große Ausstellungshalle und Fahrwerkstätten sind in der Europazentrale von Hyundai integriert.
Als erster Bauabschnitt in L-Form mit vorgesetzter Ausstellungshalle vollständig verglast mit einem gut sichtbaren Grundstück stellt das Gebäude den Anfang einer Entwicklung des gesamten Kaiserlei Areals zwischen Offenbach und Frankfurt dar.
Unfallkasse Hessen*
*Referenzen von Architekt Carsten Volleth in der Zeit von 1998 - 2014 bei B&V Braun Canton Volleth Architekten GmbH
Bürogebäude Frankfurt am Main, Leonardo-Da-Vinci-Allee
BGF oberirdisch: 9.300 m²
BGF unterirdisch: 4.600 m²
BRI oberirdisch: 34.000 m³
BRI unterirdisch: 17.000 m³
Bewerbungsverfahren 1. Preis
Planungsbeginn: 2003
Fertigstellung: 2005
Die Unfallkasse Hessen – ein Gebäude mit hohen technischen und gestalterischen Ansprüchen als Stadtbaustein für den Rebstockpark in Frankfurt am Main. Eine hochwertige Natursteinfassade mit einem Fenster/Glasanteil von nur 50 % stellt die Grundlage für eine energetisch hochwertige Fassade mit geringem Transmissionswärmeverlust dar.
68 Erdsonden unterstützen die Wärmepumpe bei der Wärme- bzw. Kälteerzeugung.
Der Wärmeaustausch erfolgt über die Betondecken. In der Fassade integrierte Zuluftgeräte in jeder Fensterachse (297 Zuluftboxen) ermöglichen eine Luftwechselrate von 40 m³/Person. Durch die gewählte Anordnung der Luftboxen konnte auf eine konservative Kanalführung verzichtet werden und damit auch die Geschosshöhen optimiert werden.
Hanauer Landstraße 172*
*Referenzen von Architekt Carsten Volleth in der Zeit von 1998 - 2014 bei B&V Braun Canton Volleth Architekten GmbH
Frankfurt am Main
BGF: 5.800 m²
Oberirdische Vollgeschosse: 7
Oberirdische Vollgeschosse: 7
Untergeschosse: 2
Planungsbeginn: 2000
Fertigstellung: 2004
Fertigstellung: 2004
Einer der ersten Bausteine in der Entwicklung der Hanauer Landstraße in Frankfurt ist das Gebäude Hanauer Landstraße 172. Der als Abschluss und als Eckgebäude zur Schwedlerstraße angeordnete städtebauliche Hochpunkt ist für Autofahrer von Osten kommend sehr markant.
Eine Eingangshalle über sechs Geschosse sowie ein zweigeschossiger „Monitor“ mit hochwertiger Klinkerfassade prägen das Carrée.
Im Erdgeschoss ist Einzelhandelsnutzung denkbar, Obergeschosse teilen sich in je zwei Büroeinheiten. Die industriell geprägte Hanauer Landstraße bildet die Vorgabe für die Fassade. Roh belassene Betonelemente im Inneren des Gebäudes erinnern an Fabriketagen und Lofts.
Eine Eingangshalle über sechs Geschosse sowie ein zweigeschossiger „Monitor“ mit hochwertiger Klinkerfassade prägen das Carrée.
Im Erdgeschoss ist Einzelhandelsnutzung denkbar, Obergeschosse teilen sich in je zwei Büroeinheiten. Die industriell geprägte Hanauer Landstraße bildet die Vorgabe für die Fassade. Roh belassene Betonelemente im Inneren des Gebäudes erinnern an Fabriketagen und Lofts.
Wohngebäude auf der Mole*
*Referenzen von Architekt Carsten Volleth in der Zeit von 1998 - 2014 bei B&V Braun Canton Volleth Architekten GmbH
Umbauter Raum
Haus Mainside 2: 17.860 m³
Haus Mainside 3: 17.300 m³
Haus Mainside 4: 17.300 m³
Bruttogeschossfläche
Haus Mainside 2 - UG: 1.380 m²
Haus Mainside 2 - OG: 3.820 m³
Haus Mainside 3 - UG: 1.380 m²
Haus Mainside 3 - OG: 3.810 m²
Haus Mainside 4 - UG: 1.380 m²
Haus Mainside 4 - OG: 3.810 m²
Wohnfläche
Haus Mainside 2 (26 WE): 3.080 m²
Haus Mainside 3 (30 WE): 3.110 m²
Haus Mainside 4 (26 WE): 3.050 m²
Planungsbeginn: Dezember 1999
Baubeginn: März 2001
Fertigstellung: März 2004
KPM Berlin*
*Referenzen von Architekt Carsten Volleth in der Zeit von 1998 - 2014 bei B&V Braun Canton Volleth Architekten GmbH
Bürogebäude für die Bundesgesundheitsverbände
Berlin - Charlottenburg
Grundstücksgröße 7.265 m²
BGF oberirdisch 12.119 m²
BGF unterirdisch 4.873 m²
BRI incl. UG 61.055 m³
Planungsbeginn: 2001
Baubeginn: 2002
Fertigstellung: 2004
Die städtebauliche Form dieses siebengeschossigen Bürogebäudes ging aus einem Wettbewerb hervor.
Zusammen mit dem Nachbargebäude wird es die neuen Bundeszentralen der Kassenärztlichen Bundesvereinigung, der Deutschen Krankenhaus-gesellschaft, sowie der Bundesärztekammer aufnehmen.
Die Bürobereiche der beiden Gebäudeflügel werden durch einen zweigeschossigen Flachbau mit flexibel teilbaren Konferenzsälen und einem großzügigen Foyer verbunden.
Eine zweigeschossige Tiefgarage wird von den Verbänden gemeinsam genutzt.























































































































































































